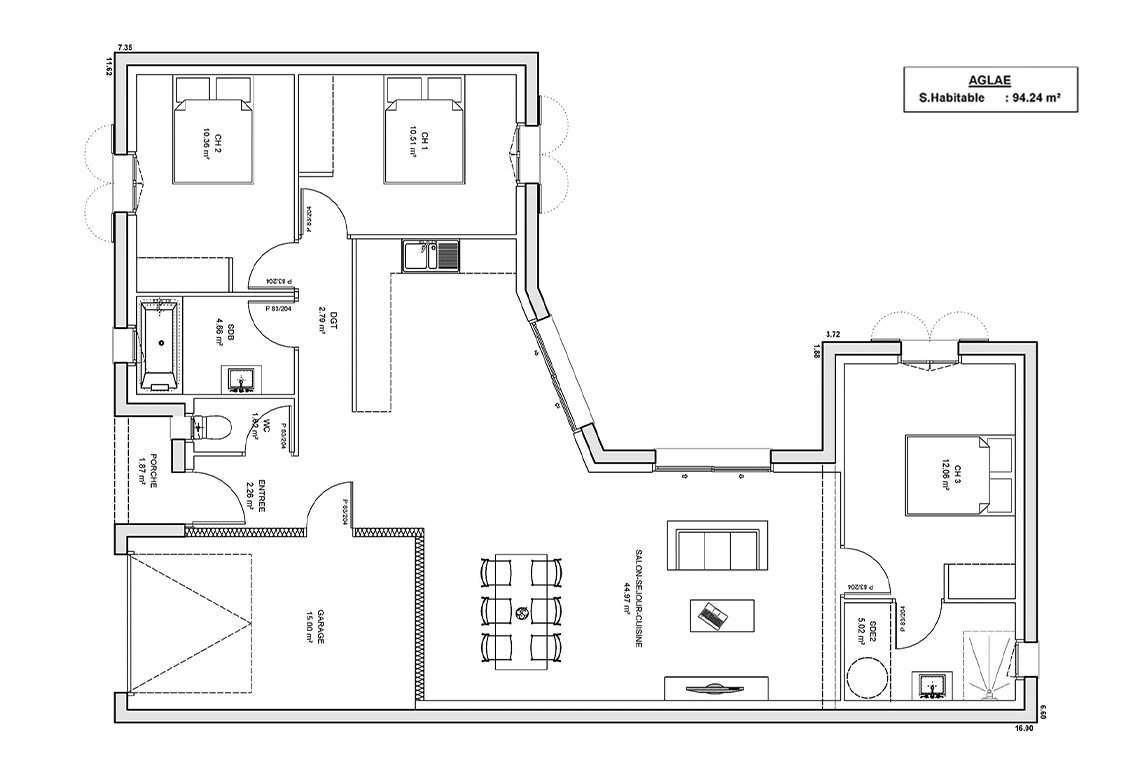
Aglaé
Aglaé est une maison d’une surface habitable de 94 m² qui s’adapte aux contraintes des terrains de faible largeur. Son vaste séjour ouvert sur sa cuisine dégage une surface de 44 m² et pour plus de quiétude une suite parentale avec salle de bains saura vous ravir.
Surface habitable :
94,24
m²
Surface annexe:
16,87
m²
Chambres:
3
Salle de bain :
1
Cuisine, salon, séjour :
44,11
m²
Toit terrasse:
Non
Chauffage:
Pompe à chaleur air/air
Garage:
Oui
Format / style:
Maison en L
Plan
Configurateur
Configurateur
à partir de



