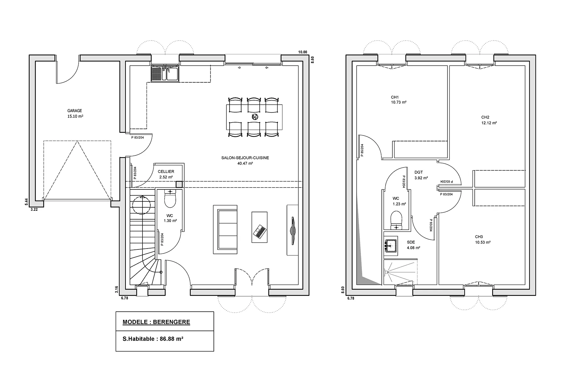
Bérengère
De faible emprise au sol, Bérengère, modèle à étage de 86 m² habitables est idéale pour les terrains de faible largeur. Une belle pièce de vie traversante occupe l’ensemble du rez de chaussé. Afin de préserver le calme de la partie nuit, les 3 chambres avec placards et la salle de bains prennent place à l’étage. Bérengère existe en 4 chambres avec dressing.
Surface habitable :
86,88
m²
Surface annexe:
15,10
m²
Chambres:
3
Salle de bain :
1
Cuisine, salon, séjour :
34,75
m²
Toit terrasse:
Non
Chauffage:
Pompe à chaleur air/air
Garage:
Oui
Format / style:
Étage urbain
Plan
Configurateur
Configurateur
à partir de


