Laura
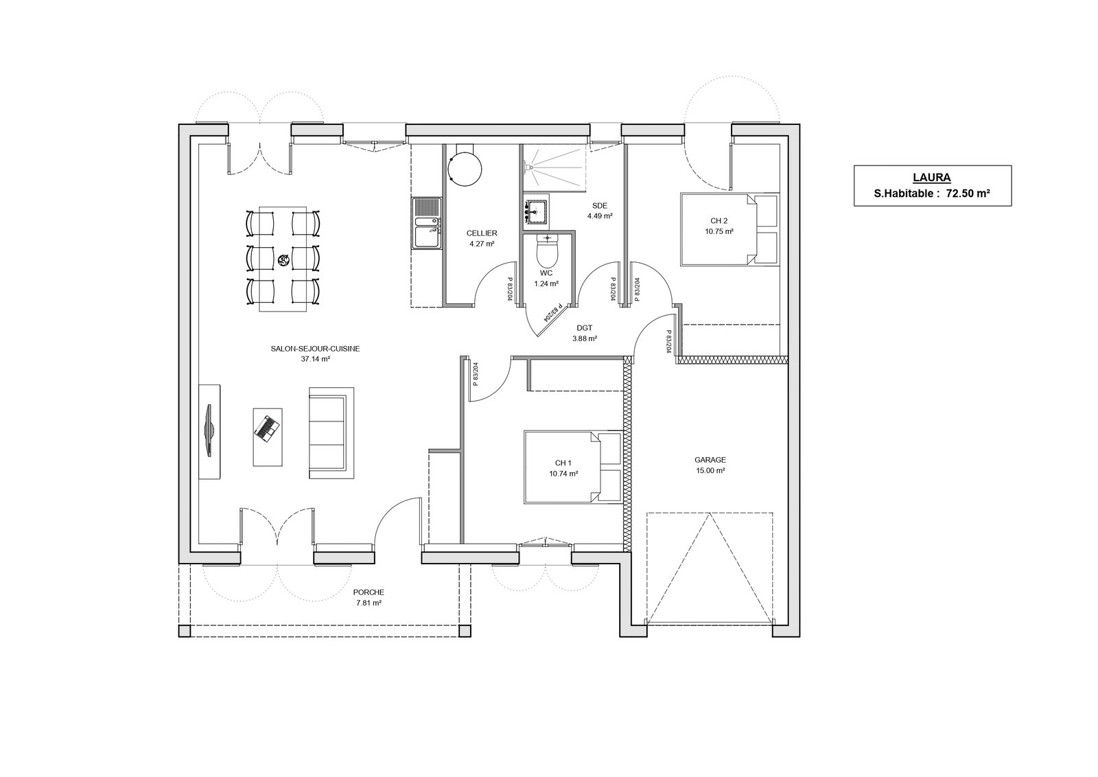
Laura, d’une de surface habitable de 72 m², est parfaite pour une maison de vacances ou une première acquisition. Elle est agrémentée de 2 chambres et d’un joli porche en façade avant. Le garage en fond de partie nuit permet de s’adapter aux terrains qui présentent la meilleure orientation à l’opposé de l’accès à la parcelle.
Surface habitable :
72.5
m²
Surface annexe:
22.81
m²
Chambres:
2
Salle de bain :
1
Cuisine, salon, séjour :
37.14
m²
Toit terrasse:
Non
Chauffage:
Pompe à chaleur air/air
Garage:
Oui
Format / style:
Rural
Plan
Configurateur
Configurateur
à partir de


