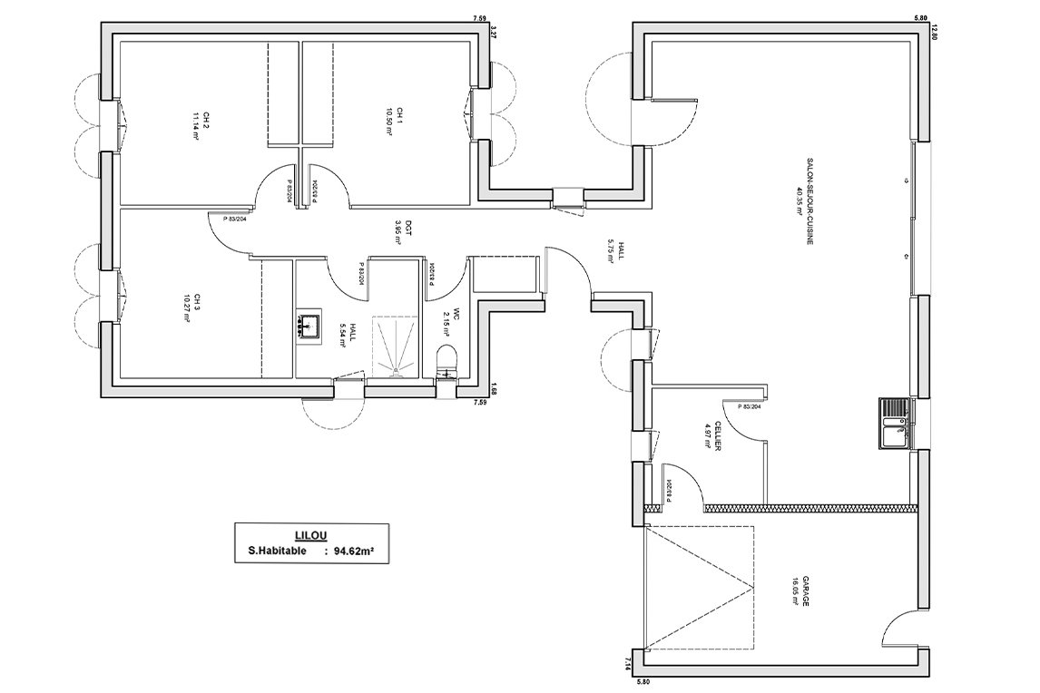
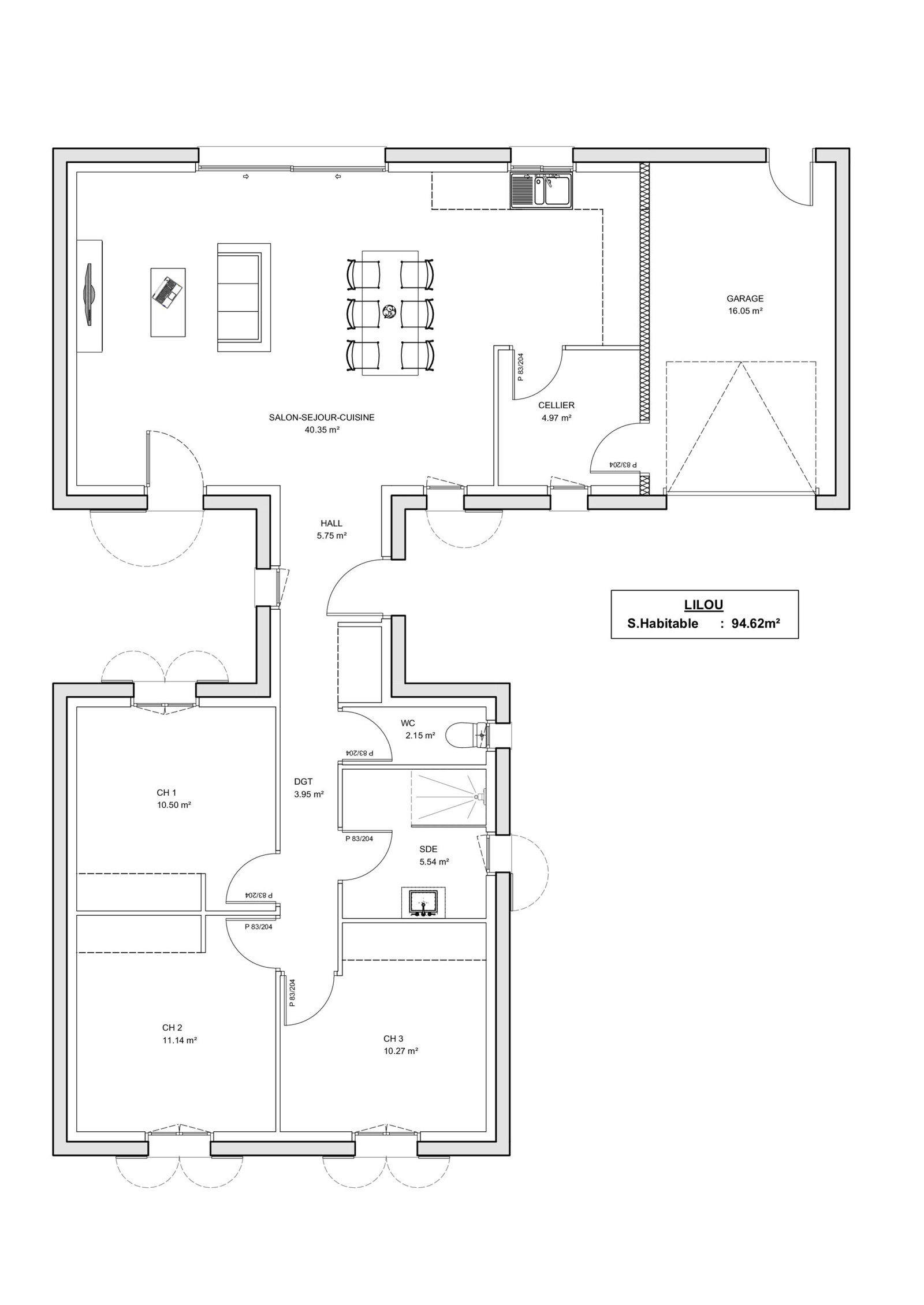
Lilou
Inspirée du style Rétais, l’architecture de Lilou offre un vrai caractère à votre construction qui ne vous laissera pas indifférent ! Elle n’est pas moins fonctionnelle pour autant avec sa partie nuit totalement indépendante de sa pièce de vie ultra lumineuse ! Sa cour d’entrée, son hall idéalement placé et le patio accessible depuis le salon séjour la rendent définitivement différente !Proposée avec les prestations Rétaises, « Enduit taloché, volets bois, débords de toits, petits bois sur les menuiseries et gouttière zinc » ou NON ce modèle est parfaitement modulable !
Surface habitable :
94.62
m²
Surface annexe:
16.05
m²
Chambres:
3
Salle de bain :
1
Cuisine, salon, séjour :
40.82
m²
Toit terrasse:
Non
Chauffage:
Poêle à granulés
Garage:
Oui
Format / style:
Style rétais
Plan
Configurateur
Configurateur
à partir de



