Madyson
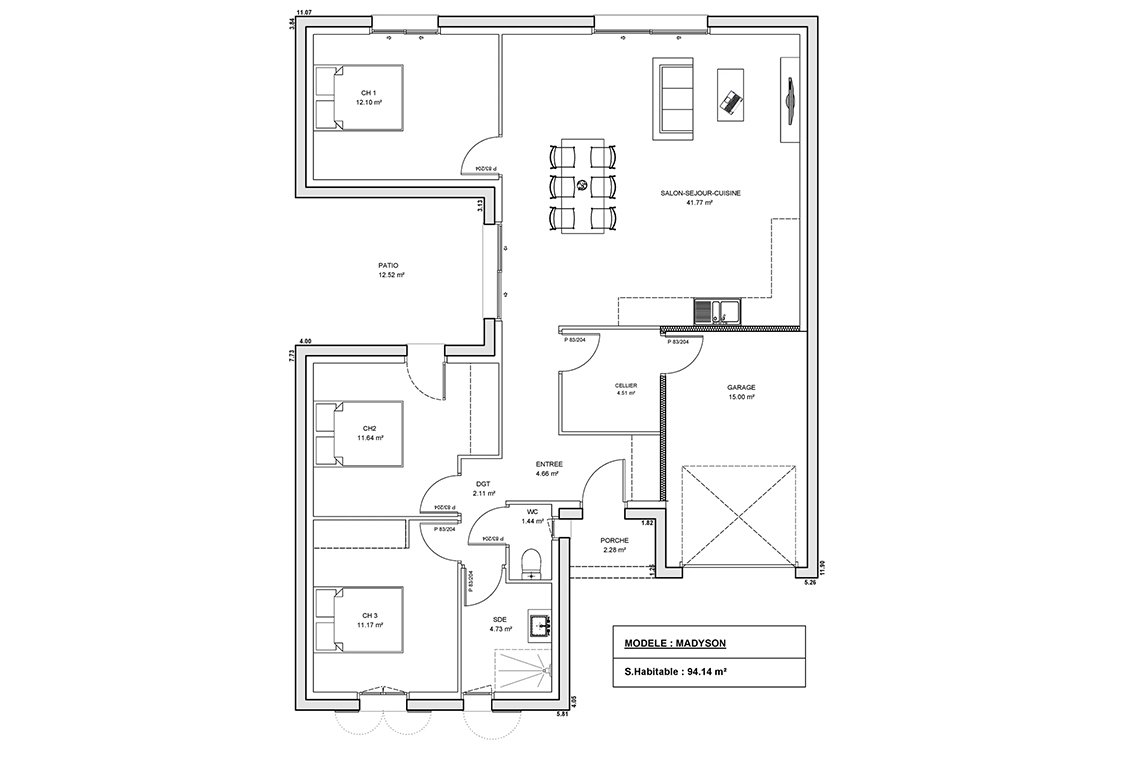
Madyson a été conçue pour s’adapter aux terrains de faibles largeurs et donc souvent les plus petits. L’astuce réside dans le patio, permettant l’ouverture sur la CH2 et le salon séjour faisant une pierre deux coups en proposant un espace, protégé des grands vents et apprécié de nos clients ! Grâce à son architecture globale cette construction se distinguera de la majorité en vous proposant tous les critères actuels : grand espace de vie, large surface de rangement, partie nuit séparée en deux et bien d’autres… Ce modèle 3CH de 94m² peut également évoluer en 4CH et s’agrandit à souhait !
Surface habitable :
94.14
m²
Surface annexe:
17.28
m²
Chambres:
3
Salle de bain :
1
Cuisine, salon, séjour :
41.77
m²
Toit terrasse:
Non
Chauffage:
Pompe à chaleur air/air
Garage:
Oui
Format / style:
Traditionnel et moderne
Plan
Configurateur
Configurateur
à partir de


